CPE1

  • Název: CPE1
  • Klient: 
  • Projekt: kancelářské prostory
  • Lokace: Praha – Nové Město
  • Rok: 2024
  • Typ: návrh interiéru, realizace

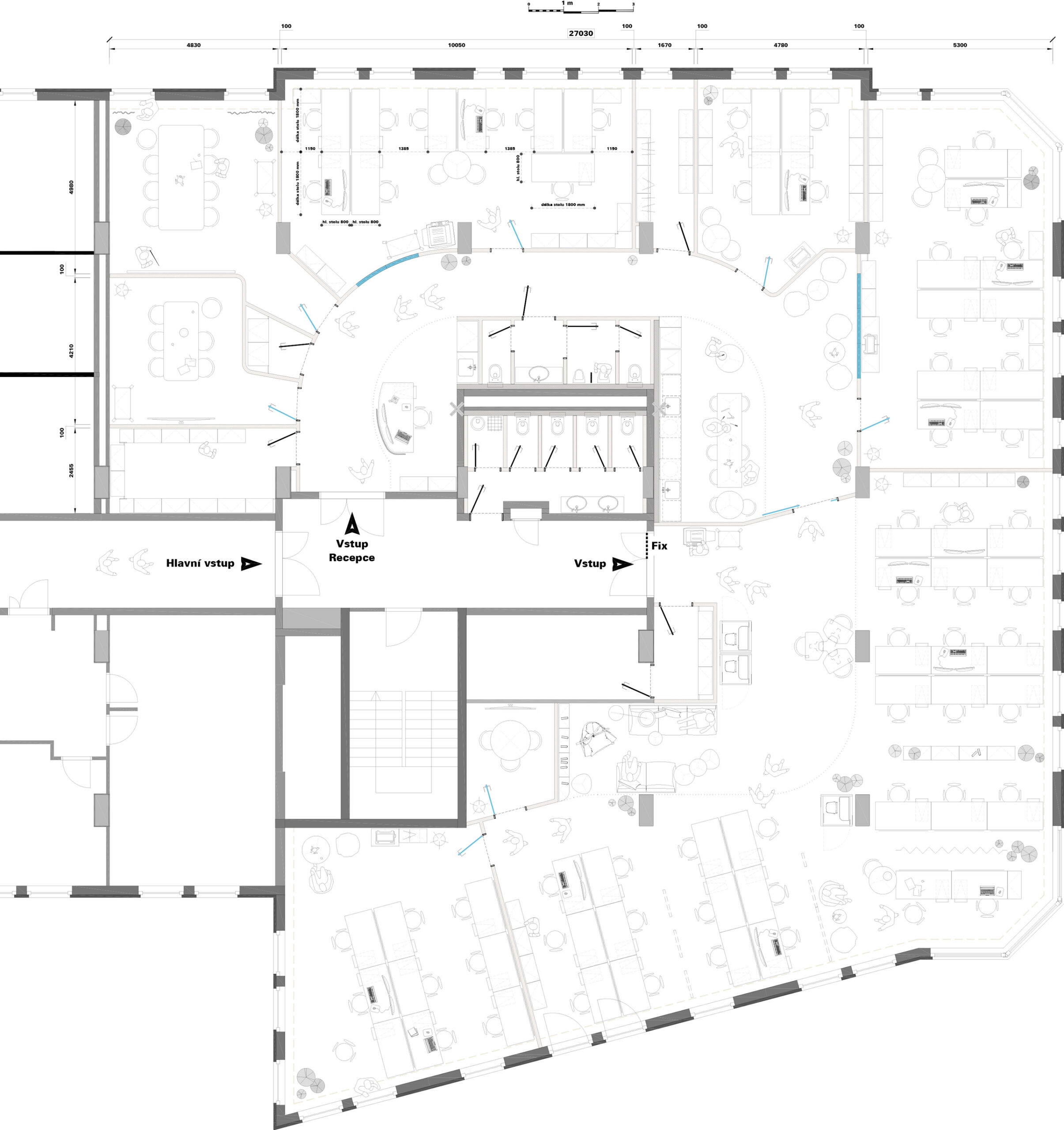
Firma s celosvětovým jménem nás oslovila k vytvoření návrhu s realizací interiéru jejich nově vznikajících kanceláří v Praze. Prostor je štědrý svou velikostí i světlem, proto pro nás bylo důležité uchopit jeho koncept tak, aby se pracující člověk cítil jako doma. Útulnosti pomáhají strukturální koberce a tapety. Použili jsme originální osvětlení a vše doplnili o svěží barvy zařizovacích předmětů.

Používáme cookies
Můžete „POVOLIT VŠE“ (technické, analytické i reklamní) nebo „JEN TECHNICKÉ“ (nutné pro fungování webu).
Povolit jen některé (analytické nebo reklamní) můžete přes „Nastavení Cookies". Zásady ochrany osobních údajů
Nastavení Cookies
POVOLIT VŠE
JEN TECHNICKÉ
Nastavení Cookies
Zásady
Označení Cookie Aktivní
Soubory cookies používáme pro zajištění základních funkcí webu a pro jeho případné zlepšování.

V záložce "Seznam Cookies" si můžete vybrat, které chcete povolit nebo odmítnout. Změny uložíte pomocí tlačítka "Uložit nastavení" níže (nastavení lze kdykoliv změnit pomocí tlačítka "Nastavení Cookies" v pravém dolním rohu webu).

V záložce "Seznam Cookies" lze povolit/odmítnout analytické nebo reklamní cookies. Technické cookies jsou nutné pro správné fungování webu.

Veškeré soubory cookies můžete blokovat přímo ve svém prohlížeči podle oficiálních návodů poskytovatele daného prohlížeče. Po této změně nastavení neručíme za správné fungování webu.

Technické cookies
Jsou nezbytné pro správné fungování webu a všech funkcí, které nabízí. Nepožadujeme Váš souhlas s využitím technických cookies na našem webu. Z tohoto důvodu technické cookies nemohou být individuálně deaktivovány nebo aktivovány.

Analytické cookies
Umožňují měření výkonu webu a reklamních kampaní. Jejich pomocí určujeme počet návštěv a zdroje návštěv našich internetových stránek. Získaná data zpracováváme souhrnně, bez použití identifikátorů konkrétních uživatelů webu. Odmítnutím používání analytických cookies, ztrácíme možnost analýzy výkonu a optimalizace webu.

Reklamní cookies
Slouží nám nebo našim partnerům. Pomocí nich Vám můžeme zobrazit vhodné obsahy nebo reklamy jak na našich stránkách, tak na stránkách třetích stran. Slouží k vytváření profilů založených na Vašich zájmech - tzv. "pseudonymizované profily" - na základě těchto informací není zpravidla možná bezprostřední identifikace Vaší osoby. Pokud nevyjádříte souhlas, nebudete příjemcem obsahů a reklam přizpůsobených Vašim zájmům.
Uložit nastavení
Nastavení Cookies
Přejít nahoru